Co to jest inwentaryzacja dendrologiczna?
Inwentaryzacja drzew to proces szczegółowego dokumentowania stanu i liczby drzew na danym terenie, kluczowy przy planowaniu inwestycji oraz ochrony środowiska. W ramach tej inwentaryzacji ocenia się gatunki, kondycję zdrowotną, wymiary (wysokość, obwód pnia) oraz lokalizację poszczególnych drzew. Często identyfikuje się również drzewa cenne przyrodniczo lub objęte ochroną.
Wyniki inwentaryzacji stanowią podstawę do podejmowania decyzji dotyczących ewentualnej wycinki, przesadzenia lub ochrony drzew w obrębie projektowanej inwestycji. Dokumentacja ta jest zazwyczaj wymagana do uzyskania pozwoleń budowlanych i wycinkowych, a jej celem jest zminimalizowanie ingerencji w środowisko naturalne oraz zachowanie równowagi ekologicznej na terenach inwestycyjnych.


Podstawa wniosku o zgodę na usunięcie drzewa lub krzewu
- Nazwa gatunkowa
- Obwód pnia, zmierzony zarówno na wysokości 5 cm, jak i 1,3 m (tzw. obwód pierśnicowy) dla drzew
- Powierzchnię w przypadku krzewów
- Rysunek, mapę lub projekt z zaznaczoną lokalizacją drzew i krzewów planowanych do usunięcia.
Z czego składa się inwentaryzacja dendrologiczna?
Standardowo dokumentacja z inwentaryzacji składa się z dwóch głównych części
- Część tabelaryczna – zestawienie szczegółowych informacji o każdym zinwentaryzowanym drzewie i krzewie
- Numer identyfikacyjny: Unikalny numer przypisany do każdego drzewa
- Gatunek: Nazwa polska i łacińska drzewa lub krzewu
- Obwód pnia: Mierzony na wysokości 5cm i 130 cm od podstawy drzewa
- Stan zdrowotny: Ocena kondycji drzewa
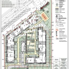
- Część graficzna
- Mapa terenu: Szczegółowy plan obszaru z zaznaczoną lokalizacją każdego zinwentaryzowanego drzewa i krzewu
- Legenda: Objaśnienia użytych symboli i oznaczeń na mapie
Dodatkowo, w zależności od celu inwentaryzacji, dokumentacja może zawierać:
- Analizę kolizji z planowanymi inwestycjami: Wskazanie drzew i krzewów kolidujących z projektowanymi obiektami budowlanymi
- Propozycje nasadzeń zastępczych: Plan rekompensacyjnych nasadzeń w przypadku konieczności usunięcia istniejącej roślinności.
Kompleksowość i szczegółowość inwentaryzacji dendrologicznej zależy od specyfiki terenu oraz wymagań inwestora czy organów administracyjnych. Dokładne i rzetelne opracowanie wszystkich części dokumentacji jest kluczowe dla prawidłowego planowania i realizacji działań związanych z gospodarką zielenią.
Przykładowe realizacje
- Inwentaryzacja dendrologiczna






